SPATIAL DESIGN FOR LIVING
Location: Ma On Shan
Size: 447 sq.ft.
Layout: 2 Bedrooms · 1 Bathroom · Living & Dining · 1 Kitchen
Budget: Approx. HKD 390,000 (including materials and labor)
Construction Period: Approx. 4 months
Introduction:
Located in Ma On Shan, this 447 sq.ft. two-bedroom apartment was designed for a mother and her son. Beyond improving the outdated layout, the renovation also prepares a comfortable home for the son’s future wife, who will soon become part of the family.
The original flat suffered from limited storage and narrow circulation areas. Through thoughtful Hong Kong small-apartment planning and customized storage solutions, the design team transformed the home into a warm and highly functional living space. The master bedroom was allocated to the son, anticipating future family needs while maintaining comfort and practicality throughout the home.

Spatial Design Strategies
The living and dining room adopts warm natural light wood tones as the primary palette, creating a calm and welcoming atmosphere. The TV feature wall is defined by vertical wooden slats, adding visual texture while subtly elongating the perceived height of the space. This technique helps the compact living room feel more spacious and visually balanced.
A built-in TV cabinet integrates the television, wiring, and storage within the wall, maintaining a clean and uncluttered appearance. This approach is widely used in Hong Kong small-apartment design, minimizing bulky furniture while maximizing storage efficiency.
Furniture selections follow a Japandi-inspired style, combining minimalist wooden dining pieces with a soft fabric sofa. Natural daylight from the large windows enhances the warmth of the timber surfaces, creating a relaxed and comfortable living atmosphere. The designer also preserved generous open space, allowing flexibility for both daily family life and occasional gatherings.
Final Design:
The completed vision of the space.




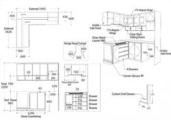
Design Phase:
3D Rendering / CAD Tender Drawing / Design Specification
![]() | ![]() | ![]() | ![]() |
|---|







